|
第8回広島平和記念資料館展示検討会議 |
次 第
1 開 会
2 議 題1 「被爆の実相(本館)」について
検討資料1(P.1〜P.9)
3 議 題2 「導入展示(東館)」について
検討資料2(P.10〜P.15)
4 議 題3 「核兵器の危険性、広島の歩み(東館)」について
検討資料3(P.16〜P.22)
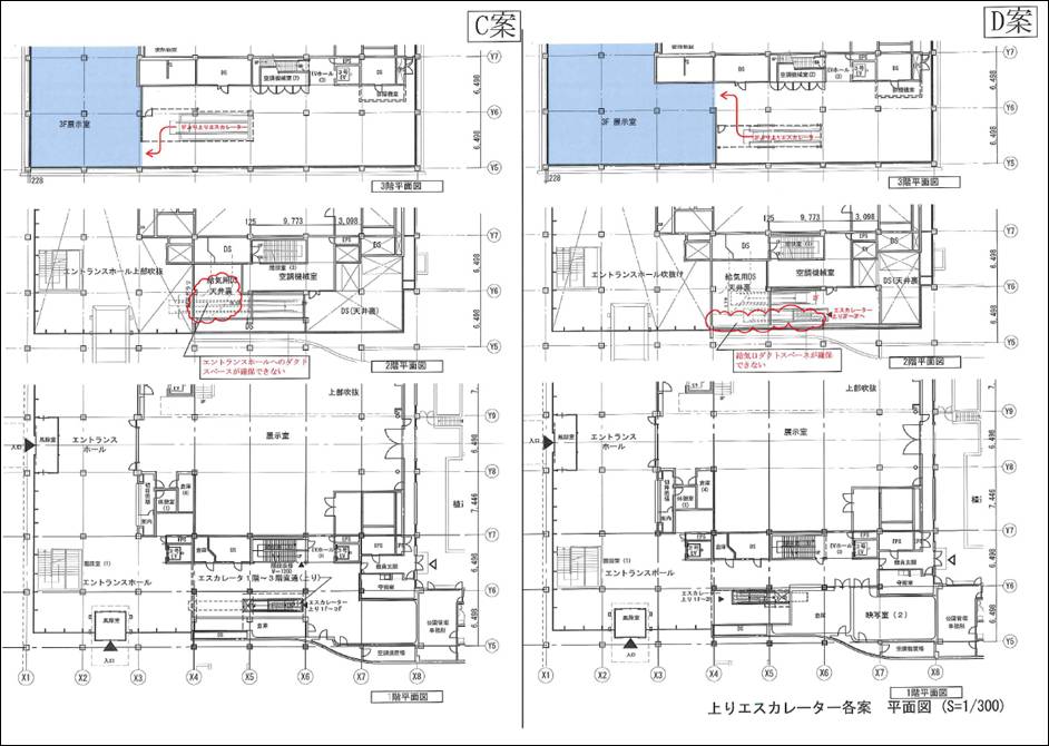
5 議 題4 上りエスカレーターについて
検討資料4「上りエスカレーター検討」
6 閉 会
| 資料1 |










| 資料2 |






| 資料3 |







| 資料4 |


